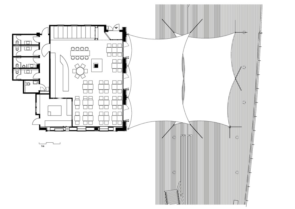
Willkommen in der Schweiz, wo auch hie und da ein tolles Restaurant aus dem Boden schiesst. Nice!
http://www.archdaily.com/782063/restaurant-hafen-susanne-fritz-architekten
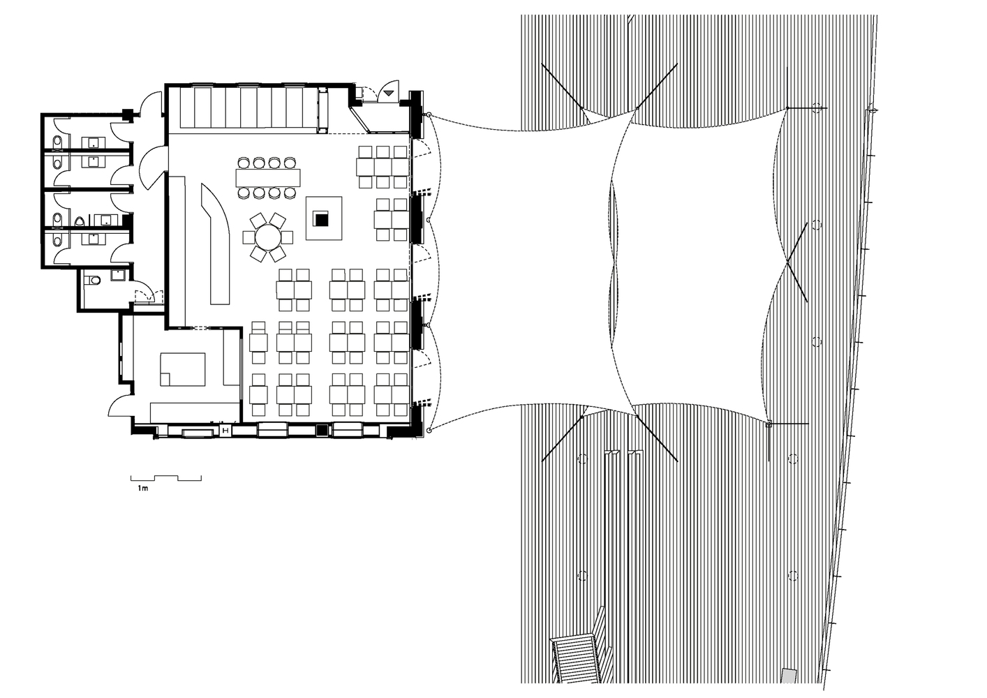
Willkommen in der Schweiz, wo auch hie und da ein tolles Restaurant aus dem Boden schiesst. Nice!
http://www.archdaily.com/782063/restaurant-hafen-susanne-fritz-architekten
Schreiben Sie einen Kommentar
Sie müssen angemeldet sein, um einen Kommentar abzugeben.